Owl Hill

family home, Marrowstone Island, WA

OH perspective.png
 
 

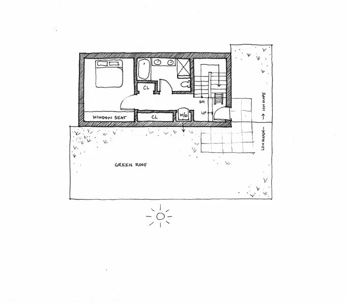
Living into Opposites

The customers wanted a tree-house feel, but also something solid and grounded that could last forever. The home wanted to be dramatic and modest, with an open floor plan conducive to aging in place, but with storage and special little nooks. The base is envisioned as rammed earth with a green roof. This schematic does not show windows yet.